Мы используем куки-файлы. Соглашение об использовании
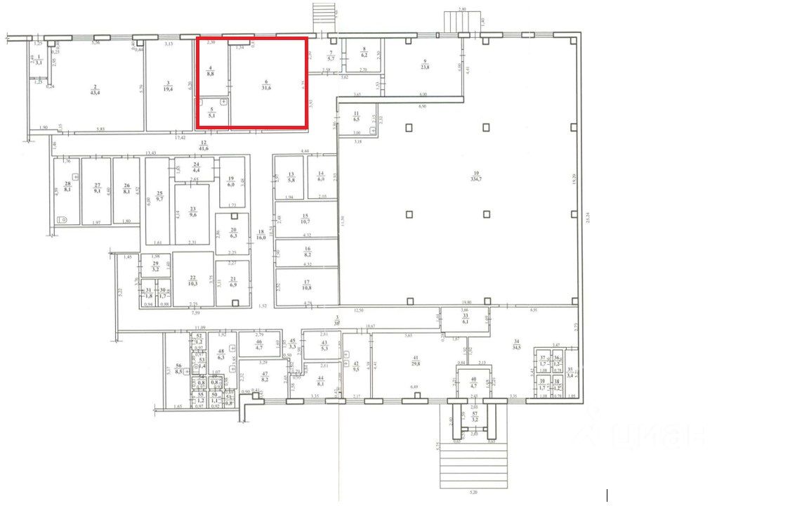
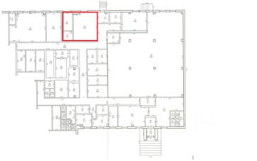
Помещение свободного назначения, 45,5 м²
Аукцион

Сдается помещение свободного назначения, 45,5 м²

Площадь45,5 м²
Этаж1 из 1
АО ЖТК предлагает в аренду нежилое помещение,площадью 45,5 кв.м, расположенное в Забайкальском крае, в пгт.Новая Чара. Помещение расположено на первом этаже одноэтажного здания,1993 года постройки. Инженерные коммуникации: электроснабжение, холодное водоснабжение, канализация. Отопление отсутствует.Внутреннее состояние помещений удовлетворительное, требуется косметический ремонт.Помещения свободного назначения (торговое, общепит, оказание услуг населению). Коммунальные и эксплуатационные расходы оплачиваются отдельно. Окружающая застройка: административные здания, жилые многоквартирные здания, развитая инфраструктура. Хорошая транспортная доступность. Передача объекта в аренду осуществляется путем проведения открытого аукциона на электронной торговой площадке РТС-тендер. Дата проведения аукциона: 05.02.2026. Дата окончания приема заявок: 02.02.2026. Номер процедур на сайте РТС-тендер: 234214 Подробная информация на сайте АО Железнодорожная торговая компания в разделе Тендеры, РТС-тендер. Об организации осмотра и подробных условиях аренды Вы можете узнать по телефону в объявлении.
АукционОбъект реализуется посредством электронных торгов. Конечную информацию об оплате, дополнительных платежах и условия заключения договора смотрите в документах извещения к лоту, на сайте электронной торговой площадки.
lock

Войдите или зарегистрируйтесь
для просмотра информации

Просматривайте условия сделки и всю информацию об объекте
Сохраняйте фильтры в поиске и не вводите заново
Доступ к избранному с любого устройства
Неограниченное добавление в избранное
Позвоните автору
Вам ответят на все вопросы
Остались вопросы по объявлению?
Позвоните владельцу объявления и уточните необходимую информацию.
  • Инфраструктура
  • Похожие рядом
  • Общая площадь45,5 м²
Помощь надёжных риелторов
Риелтор партнёр Циан поможет купить или продать любую недвижимость
Начальная цена, аукцион
53 734 ₽/мес.

Прямая аренда (от года), минимальный срок аренды 11 месяцев, предоплата за 1 месяц

754 $/мес.
649 /мес.
Цена за метр
14 172 ₽ в год
Налог
НДС включен: 9 689 ₽
Комиссия
нет
Коммунальные платежи
не включены
Эксплуатационные расходы
не включены
Агентство недвижимости
Документы проверены