


144 000 ₽/м²
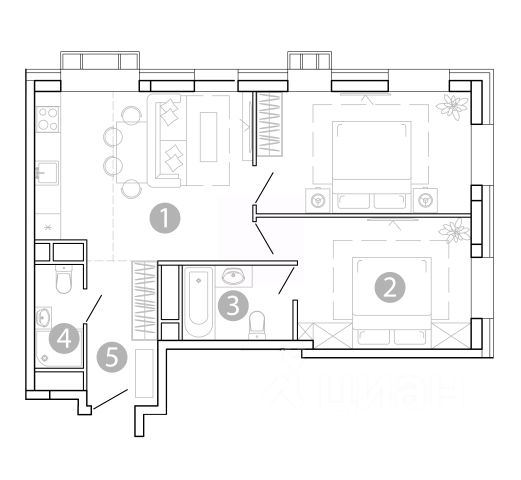
Продается 2-комн. квартира площадью 57 кв.м, без отделки. Квартира расположена на 6 этаже 18 этажного монолитно-кирпичного дома (Литер 2 (3 очередь), Секция 1) в ЖК "Хороший" от АТОЛЛ. "Хороший" уютный микрорайон на берегу озера Кенон. Мы запланировали комплексную застройку: возводим дома средней этажности (от 9 до 18 этажей) и создаем собственную инфраструктуру. Первая очередь и детский сад уже сданы, а весь микрорайон будет полностью готов в 2030 году. К этому моменту здесь будет 35 современных жилых зданий, 3 парка, школа, детские сады, большой паркинг и многое другое. "Хороший" городской кластер для жизни современных успешных людей. Это больше, чем просто жилой комплекс - это образ жизни, ориентированный на успех. 2-комнатная квартира с большой кухней-гостиной в Забайкальском крае.




















































































































