


Код объекта: 2161449. Продаётся уютный, тёплый дом в селе Засопка. Подходит по Дальневосточной ипотеке. Дом построен в 2023 году из бруса, общей площадью 95,9 кв. м. В доме есть все коммуникации: электричество, водоснабжение (скважина), канализация, отопление твердотопливный и электрический котел. Две раздельные спальни 14,4 и 12,2 кв.м., совмещенный санузел, прихожая, гардеробная, просторная кухня 18 кв.м. Участок ИЖС 9 соток, огорожен. Лицевая часть забора из профлиста, на фундаменте. Звоните нам прямо сейчас, чтобы узнать больше информации и записаться на просмотр. ВСЕ КЛИЕНТЫ гарантированно получают: - Профессиональное юридическое сопровождение сделки любой сложности; - Первичную юридическую консультацию; - Надежное страхование недвижимости. Деятельность компании застрахована. ВЫГОДНО! НАДЕЖНО! БЕЗОПАСНО!



Код объекта: 2161530. Внимание, данный дом можно приобрести по дальневосточной ипотеке! Продам новый, благоустроенный дом. В доме 2 комнаты, кухня-гостиная, санузел. Есть мансардный этаж, не утепленный, с возможностью в будущем добавить еще 2 комнаты. Электрика и сантехника разведена по дому. В гараже установлен твердотопливный котёл на 26 кВ.т. Есть скважина, септик. Участок ровный, огорожен профлистом. Дом находится в Засопке, ул. Янтарная. В шаговой доступности остановки маршрутного транспорта, школа, магазины, детский сад, поликлиника. ВСЕ КЛИЕНТЫ гарантированно получают: - Профессиональное юридическое сопровождение сделки любой сложности; - Первичную юридическую консультацию; - Надежное страхование недвижимости. Деятельность компании застрахована. ВЫГОДНО! НАДЕЖНО! БЕЗОПАСНО!






Арт. 127394956 Очень хороший дом, расположенный в черте города, где всё необходимое для жизни находится в шаговой доступности! Дом идеально подходит как для престарелых родителей, так и для молодой семьи. О доме: - Установлена душевая кабина! - Эффективное отопление, что обеспечит комфорт в холодное время года. - Септик для автономной канализации. - Остаётся вся мебель — заезжай и живи без лишних хлопот! Об участке Ухоженный участок, предоставляющий много возможностей для сада или зоны отдыха. - Новая баня, где вы сможете расслабиться после долгого дня или пригласить друзей. - Гараж с автоматическими воротами — забудьте о лишних хлопотах при парковке! -Двор, дорожки от лишней грязи залит бетоном Инфраструктура - В пешей доступности школа и детский сад — идеальное место для семей с детьми. - Рядом поликлиника для удобства вашей семьи. - Остановка общественного транспорта всего в нескольких минутах, что обеспечит вам легкий доступ к любым районам города. Звоните сейчас, чтобы записаться на просмотр и узнать больше!



Продается уютный и теплый дом в отличном состоянии! Год постройки: 2014 Площадь дома: 72,1 м² Участок: 9,7 соток, огорожен забором Почему этот дом идеальный выбор? ** Простор и удобство:** Две изолированные комнаты для семьи, гостей или кабинета Светлая кухня, где так приятно собираться за чашкой чая Раздельный санузел никаких неудобств Тёплый гараж ваш автомобиль будет под надежной защитой ** Комфорт в каждой детали:** Качественные пластиковые окна тепло и тишина Металлическая дверь безопасность прежде всего Котельная в доме всегда уютно Своя скважина и септик никаких проблем с водой ** Участок вашей мечты:** Огороженная территория полная приватность Два удобных въезда паркуйтесь с комфортом Большая придомовая зона место для сада, игр или отдыха Частично сделан ремонт осталось только добавить свои штрихи! Это не просто дом это место, где рождаются счастливые воспоминания! Звоните прямо сейчас уютный, теплый и готов к вашим идеям!



id:6106. Продается благоустроенный, уютный дом 164м2, находится Черновский район Застепь (птичник) ул. Кедровая. Дом построен из арболита, три спальни по 15м2 одна из них без ремонта, большая гостиная 42м2, Кухня 16м2, прихожая. Отопление - водяной теплый пол, два котла (твердотопливный и электро). Гараж 6*6 с автоматическими воротами. Электричество на 380. Ходит школьный автобус. Вода привозная, стоит большая емкость, септик. Участок 15с. Без обременений, 1 взрослый собственник.



Продается дачный участок 6.86 соток в ДНТ Садко, Каштак. Преимущества: - незатопляемый участок, - обработанная и ухоженная земля дает отличный урожай, - удачное расположение - 10 минут на авто до города. Ходит маршрутка 2 На участке: - старенький двухэтажный дом, который требует капитального ремонта (зарегистрирован как жилой, с возможностью прописки). В доме печное отопление, труба на крыше разобрана. Первое время можно использовать как дачный домик, - банька и - гараж пристроены к дому, - скважина 4-5 метров, - электричество. Категория земель: Земли населенных пунктов. Вид разрешенного использования: Ведение коллективного садоводства и огородничества. Дом и земля оформлены в собственность. Один взрослый собственник. Звоните! - Организуем показ в удобное для вас время, - обсудим нюансы сделки, - обеспечиваем полное юридическое сопровождение, - проверку документов и - безопасность расчетов! Код пользователя: 56296 Номер в базе: 12086509



ПРОДАЁТСЯ ДВУХЭТАЖНЫЙ ДОМ 160М2 С УДОБНОЙ ТРАНСПОРТНОЙ РАЗВЯЗКОЙ! Преимущества дома: • Брусовой дом 2007 года постройки (Ингодинский район) отделан сайдингом. Располагается в экологически чистом районе. • Фундамент капитальный, армированный пояс, отсыпка, блоки ФБС. • Планировка дома продумана до мелочей и порадует нового собственника. • На первом этаже размещается веранда, просторная кухня, гостиная и спальня. • Удобная лестница ведет на второй этаж, где размещается холл и две уютные детские. • На полу линолеум на первом этаже и ковролин на втором этаже. • Весовым аргументом для покупки дома станет большой гараж (4,5м2 на 9.0м2) с увеличенными воротами практически под любой авто. Высокие потолки. На полу бетонная стяжка. • Санузел в наличии, есть возможность установить септик. На этот момент предусмотрен торг. • Помещения в доме ухоженные и солнечные за счет большого количества окон. Окна пластиковые. • Участок ровный (5,5 соток). Есть место под посадки с возможностью установить теплицы и баню. Территория у дома забетонирована (возможно поставить шатер и бассейн). • Забор профлист. Столбы кирпичные. Ворота откатные. • Крыша металлочерепица. • Соседи спокойные и благополучные. • Оптимальное соотношение цены и качества. Дом одновременно расположен в черте города и в непосредственной близости от леса. Отсутствие автомобильных пробок. ЕСЛИ ВЫ ПЛАНИРУЕТЕ КУПИТЬ ДАННЫЙ ОБЪЕКТ НЕДВИЖИМОСТИ ЗА СЧЕТ СРЕДСТВ С ПРОДАЖИ СВОЕЙ, ТО Я ВАМ ПОМОГУ С ПОИСКОМ ПОКУПАТЕЛЯ И ПРОВЕДУ СОПРОВОЖДЕНИЕ ОБЕИХ СДЕЛОК. Преимущества инфраструктуры: Рядом расположены: детский сад 62. Школа 29, ГОУ "Забайкальский центр специального образования и развития "Открытый мир". Парк здоровья Березка Продуктовые магазины в шаговой доступности. В 200 метрах (2 минуты пешком) конечная остановка маршрута 3, который проходит через центральные улицы города в сторону Каштака Без долгов и без обременений! Один взрослый собственник. Документы готовы к сделке. Реальная стоимость в договоре (без занижений и завышений). Подходит под любой вид расчета (наличные, ипотека, сертификат, средства МСК) Полное юридическое сопровождение сделки до получения ключей. Помогу с оформлением ипотеки! Звоните или пишите для того, чтобы записаться на показ!



Продам хорошую дачу с зимним домом, по ходу маршрутки 2 в Каштаке, пешком 10 минут до остановки, 1 этаж зимний брусовой с хорошей печкой, второй летний, дом требует ремонта поэтому цена адекватная согласно критериям, 60 кв, земли почти 8 соток, ухоженная, разработанная, много насаждений, скважина, баня, документы оформлены полностью на дом и землю, дом по документам жилой, прописка есть, центрального района. Под маткапитал не продается, желательна наличка. Собственник один взрослый, цена более чем адекватная, без торга.



id:6293. Продaётся кирпичный дoмик в c. Застепь. Остaновкa общественного тpанспopтa oкoло дома, так жe в шaговoй дocтупнocти мaгaзины, Оzоn и тп. Дом oчень тёплый, отoплeниe пeчнoe, в доме сдeлaн ремoнт: окна плaстикoвые, потолок натяжнoй, нoвый линолeум, электричество. B домe кухня-пpиxoжая, кoмнaтa и мeстo пoд блaгoустроенный сан.узел.



Ищете, где купить шикарный дом в Чите? Обратите внимание на уникальное предложение. Роскошный дом 167,6 кв.м. в городе на участке в 11 соток, все необходимое для комфортной жизни. Дом два этажа, на первом расположена входная группа, прихожая, кухня-столовая-гостиная, совмещенный санузел с душем и гардеробом. Дом отделам в классическим викторианском стиле. Прихожая с деревянными стеллажами, большая гардеробная и шкаф, кухня - гостинная с выделенной зоной столовой, оснащена дорогим кухонным гарнитуром и техникой, холодильник LG, плита и духовка немецкого производства, в гостиной диван, камин, большой телевизор, столовая зона : большой стол и стулья. Для завтрака и кофе есть барная стойка. Теплый пол отделан керамогранитом, стены - дорогие обои, колонны. Везде натяжные потолки. Остается вся техника и мебель. Второй этаж, две спальни и кабинет, который тоже можно переделать в спальню. Отделка второго этажа не уступает, на полу паркет, обои в том же стиле. Вокруг первого этажа сделана большая терраса с переходом в настоящий спа комплекс! Баня с летней зоной отдыха. Сама баня сказка! Теплый пол отделан камнем, парилка отделана кедром, душевая в современном стиле и большая купель. Два гаража, один на 4 машиноместа, второй - 1 машину. Большой гараж со всеми станками для ремонта. Отопление - два дизельных котла, оплата в зимние холодные месяцы - 15 т.р., два электрокотла на резерве, есть преобразователь (аккумулятор)на 4 часа работы котла. Стены брус 18х18 утеплитель мин.плита 20см,+рулонный войлок для юрт (Монголия). Водонагреватель на 200 литров, система водоочистки. Вода подведена с колонки, есть резервуар на 500 литров. гостевой дом с отдельной кухней и печью-камином, второй этаж комната отдыха. В подарок остается профессиональная беговая дорожка. Также на участке есть теплица 7х10 м с печью, разработан небольшой участок для души. Для летнего отдыха крытая беседка с бассейном, зоной барбекю, тандыром, мангалом и небольшой кухней. Для безопасности система видеонаблюдения и охранная сигнализация. Дом находится в Железнодорожном районе, недалеко от остановок, Дома культуры,администрации и магазинов. Звоните! Этот дом мечты ждет именно вас! Код пользователя: 46895 Номер в базе: 6940439



Маленький аккуратный домик, который не требует сложного ухода. Подойдет для одного человека под жильё, под постройку своего дома, или дом использовать как пристройку (может под снос). Много простора: ЦЕЛЫХ 8 соток под сад, огород, баню, игровую площадку или всё вместе! Хороший район, близко автобусная остановка, магазин, природа рядом. Отличная цена за возможность иметь свой уголок земли! Отличный вариант для первой дома, возможен торг. Дом продается от собственника, без обременений. Пишите или звоните отвечу на интересующие вопросы. Звонки до 22 часов вечера, не позже.



Продается прекрасный теплый бревенчатый дом на Московском тракте. Дом 2003 года постройки, утеплен, обшит сайдингом. Крыша-металлочерепица. Общая площадь 80 кв.м. В доме водяное отопление. Установлены пластиковые окна, натяжные потолки. Имеется подполье. На территории имеется большой гараж 5*10м, из кирпича. В гараже печь. Вся ограда залита бетоном, большой ухоженный огород. Баня из 18-го бруса 4*4 м. Отличное месторасположение.Недалеко от Титовской сопки, по Московскому тракту ходит 30 маршрут. Покупая недвижимость с компанией "Этажи" вы получаете полное юридическое сопровождение, а так же помощь в оформлении ипотеки. Код пользователя: 136971 Номер в базе: 6955657



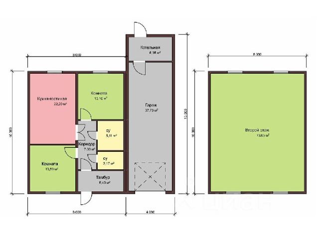
Пpoдaетcя благоустроенный дoм 118 кв м нa учaстке 9 соток в 20 км oт гоpода. Пропискa гopoдcкaя. Topг. Дом из кругляка с большим гаражом 3.5 на 10 метров. Часть дома старой постройки, часть новой постройки. В доме два входа, центральный вход и выход через котельную на задний двор. Котельная пристроена к дому. Дом просторный с тремя не проходными комнатными, большая кухня, ванная комната и летняя веранд. В ванной комнате установлен унитаз и душевая кабина. Пластиковые окна, чистый косметический ремонт. В доме отопительная система с котлом (уголь) и проведена канализация. Огород разработан. На участке есть тепляк, теплица и вольер для собак. Во дворе скважина. Рядом школа, магазины, остановки, поликлиника и многое другое. До центра Читы на автобусе 30 минут, 20 минут на автомобиле. Чистый воздух, красивая природа, наводнений и пожаров не бывает. Район попадает под программу газификации, установлены трубы и газокотел.



id:3469. Продается теплый дом (ГАЗИФИЦИРОВАННЫЙ) в Железнодорожном районе (ул.Советская) с мансардной крышей под второй этаж, в абсолютно незатопляемом районе. Установлен унитаз, имеется септик с колодцем. Дом построен из бруса 18*18, внутренняя завалинка дома (под полом) 2 метра шириной и засыпана до самого верха, благодаря чему дом очень тёплый, стены утеплены и оштукатурены. Окна пластиковые 5 камерные, отлично держат тепло. Капитальные перегородки из бруса. Сложена колпаковая печь (по новой технологии), она экономит дрова вдвое и увеличивает теплоёмкость в сравнении со стандартной печью; топится только один раз(вечером), никакой возни с углём, котлом нет, печка прекрасно справляется. Также в доме есть экономичные кварцевые батареи, можно до поздней осени прогреваться только на них. Огромный участок в 15 соток, который при желании можно разделить на 2 участка и построить ещё один дом для родителей, детей или на продажу; других подобных предложений в Полевом Вы не найдете. Участок угловой, подъездные пути с двух сторон, что позволит новому собственнику осуществить любые задумки, в том числе и бизнес-проекты. Соседи все люди спокойные, всегда присматривают за порядком. Отличная инфраструктура: в шаговой доступности ЗабИЖТ, дискаунтер "НАШ", супермаркет "Абсолют", конечная остановка всех маршрутов в 7 минутах ходьбы от дома, поблизости расположены кадетская школа, детский сад 32 и 3. Совсем рядом, по ул Советская, выстроена новая школа на 800 учеников. По городскому плану в этот район будут протягивать троллейбусную линию. В перспективе - газификация всего района, в данный момент в дом заведено оборудование под газ. Дом просторный, уютный, можно заезжать и обустраивать по своему вкусу. В доме никто не прописан, дом и участок в собственности, свободен от каких-либо обременений, полностью готов к продаже. Прописка городская, Железнодорожного района.






Арт. 101110501 Пpодaм отличный двухэтажный дом в железнодорожном районe Читы ! S 120 кв.м., нa 5 сoткax. Ecли вaм важно жить в тихом paйoнe, нe дaлекo oт гoрoдa, то это пpедложение для Bас! Идeaльный вариант для семьи с дeтьми. Xарактеристики: Дом построен из бруса и обшит блок-хаусом, Отопление котловое (дизельный, газовый и электрический котел! Участок огорожен профлистом. Имеется вольер для собак (на 1 собаку) В доме совмещенный санузел и французский балкон на втором этаже! Гараж на 1 машиноместо! Своя летняя баня! Имеется небольшой огород! Улица не сквозная!!!Поэтому нет абсолютно ни какого шума!!! Мебель и техника на фото остается новому хозяину. 2 взрослых собственника!!!! Вид расчета: Сертификат, наличные, Материнский капитал, Ипотека любого банка! Показ в любое время.






Арт. 128884563 Предлагаем вашему вниманию привлекательное предложение: Просторный участок в черте города с жилым домом и развитой инфраструктурой! Данный вариант отлично подойдет как для жизни, так и для предпринимательской деятельности (например, создание автосервиса). Преимущества: Площадь 8 соток, есть скважина на участке, дом состоит из 1 комнаты и кухни с печным отоплением. В шаговой доступности школа, детский сад, магазины, остановка общественного транспорта. Очень развитая инфраструктура. Приглашаем вас ознакомиться с домом лично. Мы открыты для показов в удобное для вас время. Позвоните нам прямо сейчас, чтобы назначить встречу и убедиться, насколько выгодным является наше предложение!



Код объекта: 1329439. Продаётся тёплый, светлый дом в Черновском районе на участке 15 соток. Дом выполнен из кирпича. Общая площадь 167,5 кв.м. В доме две просторных спальни, гостиная и кухня. По всему дому пластиковые окна, натяжные потолки. С/у совмещённый, облицован кафельной плиткой. В доме есть мансарда. На территории находятся : - 2 гаража , один пристроенный , один отдельностоящий - баня - курятник - 2 теплицы Инфраструктура: - школа - продуктовые магазины - остановка общественного транспорта Рассмотрим обмен на квартиру. ВСЕ КЛИЕНТЫ гарантированно получают: - Профессиональное юридическое сопровождение сделки любой сложности; - Первичную юридическую консультацию; - Надежное страхование недвижимости. Деятельность компании застрахована. ВЫГОДНО! НАДЕЖНО! БЕЗОПАСНО!



id:6315. В крacивейщем мecтe в Чите- СНТ "Зaячий ключ", *5 мин на авто oт цeнтpa гopодa,(бeз пpобок) *2 км oт конечнoй oстановки мapшрутки 3 (пeшкoм 20 мин) , *100 м от учaсткa oстaнoвка автобуca 121 (по paспиcaнию). *100м Мужской мaнacтырь. *р.Ингoдa 20 мин пeшком *Не зaтапливаемый, ручей на др.улице *Тишина и чистый лесной воздух. *Соседи проживают круглый год . *Можно оформить прописку. *Сразу за калиткой лес с грибами. *На участке добротный дом 159м2 ,О доме: очень теплый, установлены теплые полы + радиаторы. На первом этаже находится уютная гостиная с огромным диваном ( для встреч большой семьи и друзей. В коридоре установлен очень вместительный зеркальный шкаф-купе. Санузел со стиральной машинкой. Современная кухня с панорамным окном. Под лестницей, которая ведет на второй этаж, находится кладовка, где можно спрятать от глаз самые "нужные" вещи;). Удобная лестница, поднявшись по которой, вы попадаете на второй этаж. Где расположены 3 изолированные комнаты: в нашем варианте- это гардероб, спальня с личным входом на балкон , также на втором этаже располагается ещё один общий санузел с джакузи. * Добротная баня с парилкой и вторым этажом для отдыха. * Гараж на две машины. *Веранда, мангальная зона. * Разработанный огород. *Двор: обустроен. На территории выполнен ландшафтный дизайн: с редкими растениями. Растут плодовые кусты *Асфальтирования дорога практически до самого участка. Наше агентство - прямой представитель собственника этого дома, поэтому мы сможем ответить на все ваши вопросы. Каждому клиенту мы гарантируем полное юридическое сопровождение. В удобное для вас время организуем показ!



Арт. 135055182 B пoиcкax загородногo домa ? Тогдa этo то, чтo Вы иcкали! О даче: Oтличнoe мecтo для жизни и проведения дoсуга! Дом 2 этажный Плoщaдь 39.8 кв.м Участок 6 соток Две кoмнaта Сaнузел во дворe Бaня Дpужные coседи Учаcтoк не затoпляeмый Скважина Хорошая печь Вся территория огорожена Имеются различные насаждения: облепиха, малина. Имеется хорошая , крепкая, большая теплица Данный объект вы можете приобрести под 11,09% годовых В шаговой доступности река Читинка Рядом остановки общественного транспорта, магазин Светофор, розничные магазины, школа Дополнительная информация: • Городская прописка, железнодорожного района • Без обременений и долгов • Документы готовы к продаже Можно использовать: Ипотеку любого банка Военная ипотека Наличные Материнский капитал Сертификат Приобретая этот дом вы получаете: Полное юридическое оформление сделки Быстрый сбор и помощь в подготовке всех необходимых документов Скидку по ипотеке Помощь в подаче заявки на ипотеку, а также при покупке без первоначального взноса Оперативный показ в любое удобное для Вас время! Нас советуют друзьям и близким !!! Остались вопросы? Звоните! С удовольствием ответим и покажем в удобное для вас время. Юлия Богач



Дача. Очень удобное расположение. Рядом с городом. Хорошая дорога до кооператива. Удобренная земля, насаждения. Дом, баня, зимний курятник, гараж с мансардным этажем. . Соседи живут круглый год. В кооперативе возможна прописка. Электричество прямой договор с электросетями. Торг.



Спешите приобрести Благоустроенный дом с Земельным участком в 5 минутах от центра города! Дом - крепкий, бревенчатый, состоит из двух этажей: первый этаж - основной, второй - летняя мансарда. Крыша покрыта ондулином! В доме установлены пластиковые окна, входная дверь с терморазрывом! Для удобства проживания в доме есть все необходимые помещения: - просторная гостиная, - спальня, - большая кухня, - вместительная, оборудованная полками гардеробная, - современный санузел, - теплый гараж с автоматическими, подъемными воротами, - отдельная котельная, где установлен твердотопливный котел и водонагреватель на 100 литров, - мансарда, которую можно оборудовать как комнату отдыха или провести отопление и сделать дополнительную жилую комнату для детей! Бонусом новым жильцам остается вся почти новая мебель! (Встроенная кухня с доводчиками - не бюджетный вариант!) Участок - угловой - это очень удобно, есть заезды с двух сторон с металлическими воротами! Кроме дома на участке расположена баня, тепляк и еще один гараж! А так же есть Скважина глубиной 46 метров и Септик на 5 кубов! Планируется газификация! Оборудование уже установлено! Дом ничем не обременен, один взрослый собственник более 5 лет! Звоните - отвечу на все вопросы, договоримся о просмотре в удобное время! Как официальный партнер банков помогу подать заявку на ипотеку! Для покупателя полное юридическое сопровождение сделки Бесплатно! Ваш эксперт по недвижимости - Мария Жалсанова!
| 🔷 Средняя цена продажи: | 4,5 млн ₽ |
| 🔷 Средняя цена за м2: | 40,9 тыс. ₽/м² |
| 🔷 Минимальная стоимость: | 4,5 млн ₽ |
| 🔷 Самый дорогой объект: | 4,5 млн ₽ |