94 872 ₽/м²
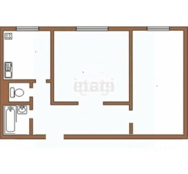
Просторная трехконатная квартира с раздельными комнатами.Теплый кирпичный дом. В шаговой доступности: магазины и остановка,детские сады и школа,несколько гаражных кооперативов рядом. В доме выполнен капитальный ремонт системы отопления.Уютная кухня с кухонным гарнитуром.Это компактная кухня в светлых тонах с практичной планировкой и уютной, немного атмосферой Пространство организовано по L-образному контуру, много места на рабочей поверхности и достаточно мест для хранения. Основные детали: Мебель: низкие глухие белые шкафы с черными ручками и тёмной столешницей под дерево. Бытовая техника: отдельно стоящий серебристый холодильник слева, встроенная духовка в центре. Стена над рабочей зоной отделана под белый кирпич; над плитой вазами. Освещение: центральная подвесная лампа и несколько настенных светильников с открытыми проводами, придающие интерьеру характер. Стена над рабочей зоной отделана под белый кирпич; над плитой -декоративная полка с банками ивазами. большая комната 19,8 м отлично подойдет для гостиной.( требуется ремонт) комната 13,6 м2 (спальня/ детская) (пол-ламинат ,стены обои,натяжные потолки) комната 13,4 мг (спальня) (пол -ламинат ,стены -обои, натяжные потолки) кухня 14,3 мг (в кухне указан значок плиты, есть окно). прихожая/коридор 7,7 м2 . малый коридор 3,9 м2, соединяющий кухню/ванную/туалет. ванная 3,5 . отдельный туалет 1,2 м2. кладовая/шкаф 1,3 м2. Квартира имеет несколько изолированных комнат (не студийная), хорошее разделение на жилые и хозяйственные зоны. Окна ориентированы на две стороны , что обеспечивает естественное освещение всех комнат. Наличие отдельного туалета и ванной - удобство для семьи. Достаточно высокая высота потолков (3,05 м2) - ощущение простора. Во всех комнатах выполнен дизайнерский ремонт,натяжные потолки.Одна комната не сделана,остается для пространства Ваших дизайнерских идей. Из мебели остается кухонный гарнитур,холодильник,встроенная техника на кухне.В спальне остается кровать с матрацем ,шкаф,диван обеденный стол и стулья. Возможен разумный торг при осмотре реальному покупателю.Продажа в связи с переездом.













































































